科技改变生活 · 科技引领未来
回农村建房,对很多朋友来讲,都是一生一次的大事。既想建的美观大气,同时又居住舒适,不留遗憾。而且在农村,房子也相当于第二张脸,房子建得好,无形之中说话分量都要足一些。今天小宅就给大家推荐10套二层农村别墅图纸,颜值一套比一套高,看看哪套适合你?
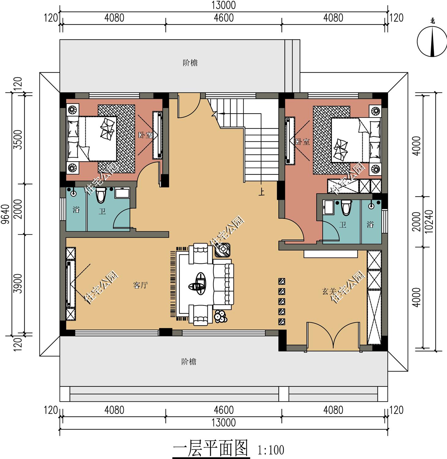
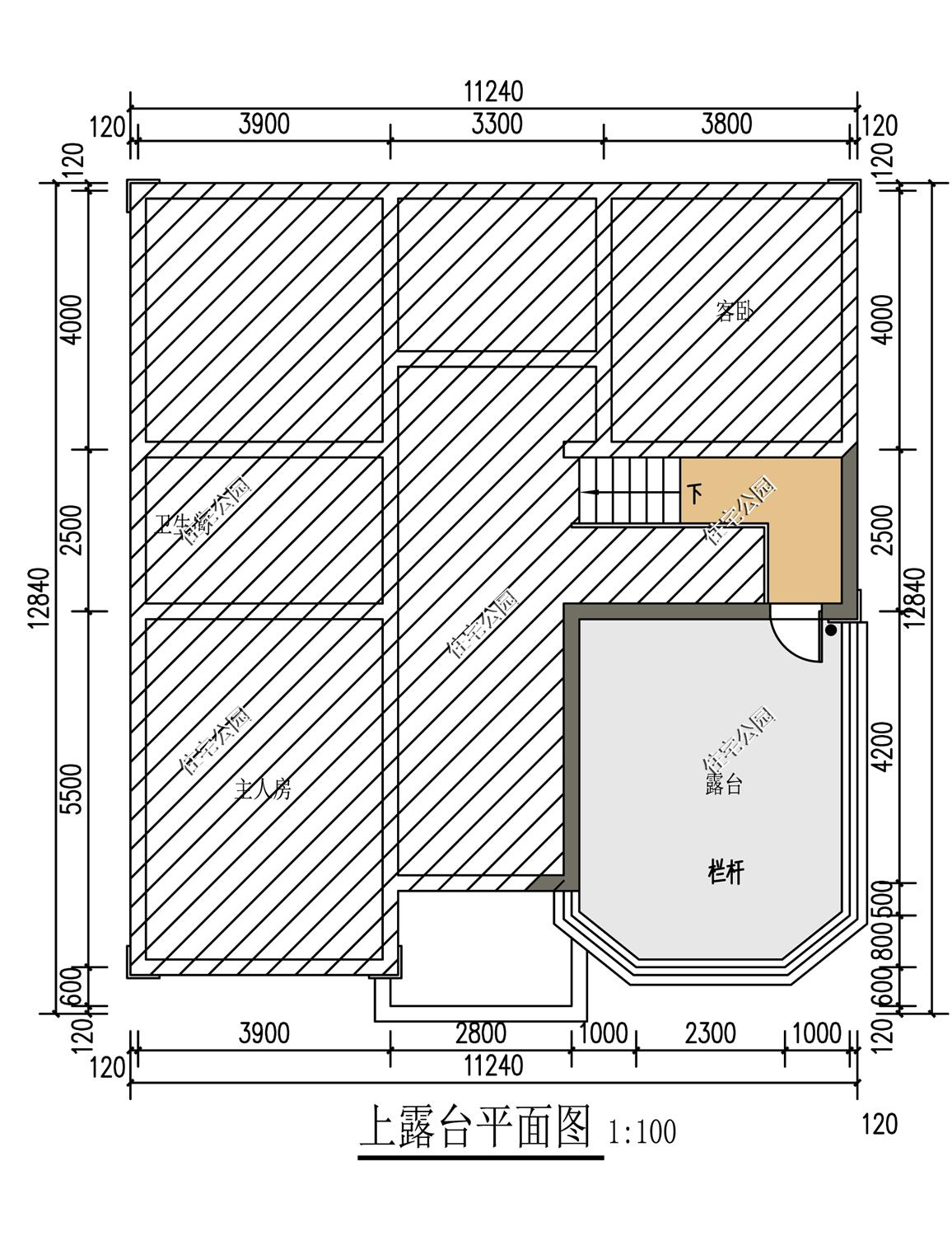
第1套:通透落地窗+舒适大露台+多卧室设计,12×13米大气雅墅,主体预算32万

占地尺寸:13m×12.12m
占地面积:152㎡
建筑面积:267㎡
建筑高度:9.788m
建筑情况:5卧室 1大客厅 1厨房 1餐厅 2卫生间 1洗衣房 1书房 1杂物间


第2套:封闭式车库+大堂屋+双客厅,16×9米舒适农村小墅,主体预算38万

占地尺寸:16.4m×9.44m
占地面积:146㎡
建筑面积:299㎡
建筑高度:9.552m
建筑情况:设4室 3厅 2卫 1厨房 1堂屋 1书房 1阳台 1车库


第3套:双入户门+通透大厅+大露台,18×13米经济适用房,主体预算35万

占地尺寸:18.88m×13m
占地面积:148.5㎡
建筑面积:281.5㎡
建筑高度:10.9m
建筑情况:设5室 2厅 1厨房 1茶室 1玄关 4卫 2露台 1衣帽间 1书房


第4套:双入户门+神龛+活动室,13×10米二层清新雅墅,主体预算34万

占地尺寸:13.4m×10.2m
占地面积:140.27㎡
建筑面积:274.10㎡
建筑高度:10.9m
建筑情况:设4卧室 2厅 4卫 1厨 1阳台 2书房


第5套:通透布局+落地窗+外置餐厨,13×10米现代风二层美墅,主体预算30万

占地尺寸:13m×10m
占地面积:130㎡
建筑面积:256㎡
建筑高度:9.3m
建筑情况:5卧2客厅 4卫 1书房 1大露台


第6套:神龛位+浪漫飘窗+大露台,13×11米新中式雅宅,主体预算36万

占地尺寸:13.2m×11.3m
占地面积:148.9㎡
建筑面积:297㎡
建筑高度:9.5m
建筑情况:5室 2厅 1厨 1餐厅 4卫 1衣帽间 1阳台


第7套:餐厨一体+挑空客厅+大露台,11×12米大气欧式别墅,主体预算30万

占地尺寸:11.2m×12.84m
占地面积:143.8㎡
建筑面积:246㎡
建筑高度:9.152m
建筑情况:5卧 1厨房 1餐厅 2卫生间 1大客厅 1起居室 1露台



第8套:神龛位+多套间+休闲娱乐区,12×13米个性美宅,主体预算40万

占地尺寸:12.6m×13.5m
占地面积:162.3㎡
建筑面积:313.7㎡
建筑高度:9.945m
建筑情况:4室 1厅 1厨 1餐厅 4卫 1娱乐室 1茶室 1书房


第9套:对称布局+健身区+豪华主卧,14×14米田园风雅墅,主体预算50万

占地尺寸:14.1m×14.7m
占地面积:208.8㎡
建筑面积:406.9㎡
建筑高度:9.66m
建筑情况:6室 2厅 1厨 1餐厅 4卫 1书房


第10套:神龛位+老虎窗+多卧室,8×12米欧式小墅,主体预算28万

占地尺寸:8.3m×12.76m
占地面积:116.32㎡
建筑面积:230㎡
建筑高度:9.656m
建筑情况:设6卧室 2厅 3卫 1厨 1阳台


农村别墅想建好,专业图纸少不了。关注本号,2000套农村自建房图纸在等你!
李同林
